La Lift Up 1500 EVO è una piattaforma elevatrice professionale progettata per il trasporto di persone e materiali nei cantieri edili, garantendo sicurezza, affidabilità e alte prestazioni anche nelle condizioni di lavoro più impegnative.
Grazie alla sua struttura robusta e al sistema di sollevamento avanzato, rappresenta la soluzione ideale per migliorare la produttività e ottimizzare i tempi operativi nei cantieri.
🔧 Caratteristiche tecniche principali
- Portata massima fino a 1500 kg
- Velocità di sollevamento fino a 12 m/min
- Altezza massima di lavoro fino a 12 metri
- Alimentazione elettrica 400V – 50/60 Hz
- Struttura resistente per uso professionale
- Freno paracadute per massima sicurezza
- Sistema elettromeccanico ad alte prestazioni
⚙️ Capacità di carico (configurazioni)
- 1 persona + materiali → fino a 1500 kg
- 2 persone → 1500 kg
- 3 persone → 1200 kg
- 4 persone → 1100 kg
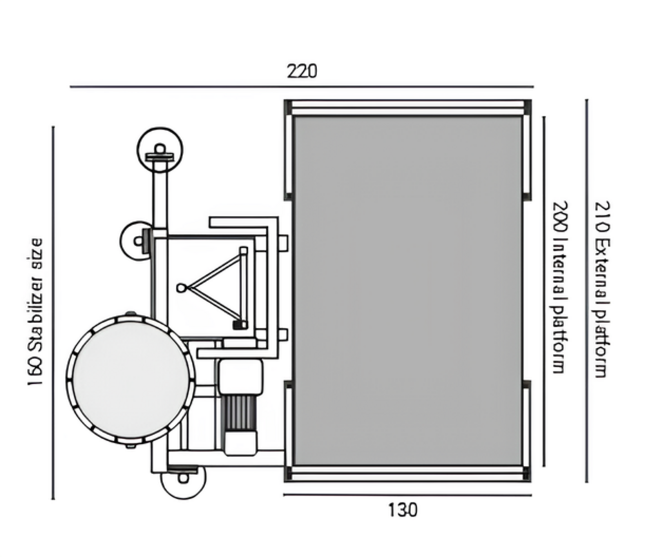
📐 Dimensioni piattaforma
- Dimensioni esterne: 210 x 140 cm
- Dimensioni interne: 200 x 130 cm
- Base a terra: 220 x 210 cm
🏗️ Applicazioni principali
- Cantieri edili
- Trasporto materiali in quota
- Movimentazione operatori
- Ristrutturazioni e manutenzioni
- Costruzioni civili e industriali
🛡️ Sicurezza e affidabilità
La Lift Up 1500 EVO è progettata con sistemi avanzati:
- Freno di sicurezza automatico
- Struttura rinforzata
- Controllo elettronico dei movimenti
- Stabilità anche a pieno carico
🚀 Vantaggi principali
- Aumento della produttività in cantiere
- Riduzione dei tempi di lavoro
- Maggiore sicurezza per operatori
- Facilità di utilizzo e installazione
- Ideale per uso intensivo professionale
💡 Perché scegliere Lift Up 1500 EVO
Scegliere Lift Up 1500 EVO significa investire in un montacarichi da cantiere affidabile, sicuro e performante, progettato per soddisfare le esigenze reali delle imprese edili moderne.



Condividi