La Golden Bridge è una piattaforma di lavoro autosollevante su colonne progettata per garantire massima sicurezza, efficienza e versatilità nei cantieri edili. Grazie alla tecnologia avanzata e alla struttura modulare, rappresenta una soluzione professionale ideale per lavori in quota, manutenzione facciate, ristrutturazioni e costruzioni.
Disponibile nelle versioni 220V e 380V, la Golden Bridge si adatta a diverse esigenze operative, offrendo configurazioni flessibili e prestazioni elevate anche in condizioni di lavoro complesse.
🔧 Caratteristiche principali
- Sistema autosollevante su colonne ad alta stabilità
- Disponibile in alimentazione 220V e 380V
- Altezza massima fino a 120 metri
- Struttura modulare espandibile fino a oltre 28 metri di lunghezza
- Elevata capacità di carico fino a 1000 kg
- Massima sicurezza certificata per utilizzo professionale
- Facilità di montaggio e smontaggio
- Ideale per lavori su facciate, edilizia civile e industriale
⚡ Versioni disponibili
🔴 Golden Bridge 380V
- Motore ad alta potenza
- Ideale per cantieri intensivi e utilizzo continuo
- Maggiore capacità di carico
- Performance elevate anche su grandi altezze
🔵 Golden Bridge 220V
- Perfetta per cantieri residenziali
- Consumi ridotti
- Facilità di installazione anche in contesti domestici
- Ottima soluzione per lavori di ristrutturazione
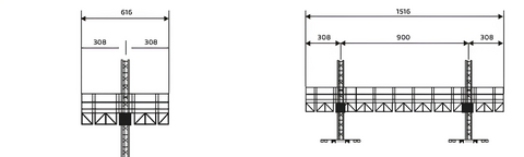
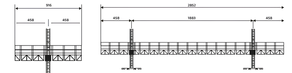
📐 Configurazioni e modularità
La piattaforma Golden Bridge è completamente modulare e permette di configurare:
- Lunghezza della piattaforma
- Numero di colonne
- Estensioni laterali
- Accessi e cancelli di sicurezza
Le configurazioni possono variare in base alle esigenze specifiche del cantiere, garantendo sempre la massima adattabilità.
🏗️ Applicazioni principali
- Ristrutturazioni edilizie
- Manutenzione facciate
- Costruzioni civili e industriali
- Lavori in quota in totale sicurezza
- Cantieri di medie e grandi dimensioni
🛡️ Sicurezza e affidabilità
Golden Bridge è progettata secondo i più alti standard di sicurezza:
- Sistemi di blocco automatico
- Controllo elettronico dei movimenti
- Struttura rinforzata
- Componenti certificati
💡 Perché scegliere Golden Bridge
Scegliere Golden Bridge significa investire in:
- Produttività maggiore in cantiere
- Riduzione dei tempi di lavoro
- Massima sicurezza per gli operatori
- Versatilità totale di utilizzo


Condividi