• BENVENUTI DA LEANZA GROUP

MONOBLOCCO PREFABBRICATO Serie SAPIC SL1

Disponibilità immediata
€ 0,00
Supplemento spedizione 
Supplemento una tantum 
paypal logoPAGA IN 3 RATE  (senza interessi)
al mese - scopri di più
heylight logo PAGA IN 0 RATE  (senza costi)
al mese - scopri di più

Descrizione

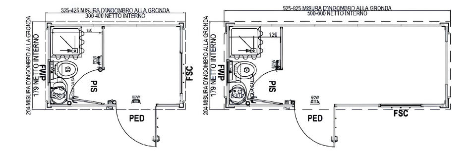
Monoblocco prefabbricato con servizi igienici integrati, ideale per cantieri, eventi o installazioni temporanee dove è necessario avere un bagno interno.

Dotazioni standard

  • Porta esterna

  • Finestre vasistas

  • WC

  • Lavabo

  • Impianto idrico sanitario

  • Impianto elettrico

Dimensioni disponibili

  • 301 × 204 cm

  • 401 × 204 cm

  • 525 × 204 cm

  • 625 × 204 cm

Condividi

Carrello